Hilltop Farm, Durham
Property Summary
Book a viewingProperty Summary
More information
Property Summary
Property Features
- SPECTACULAR CIRCA 3,330 SQ FT DETACHED RESIDENCE
- EXCLUSIVE PRIVATE GATED DEVELOPMENT
- UNINTERRUPTED PANORAMIC VIEWS
- AWARD-WINNING ARCHITECTURAL DESIGN
- PRIVATE LANDSCAPED GARDENS
- BOASTING ELEGANCE & STYLE
- TWO DRIVEWAYS TO ACCOMODATE UP TO 5 VEHICLES
- SET WITHIN CHAMPIONSHIP GOLF COURSE
- BREATHTAKING VIEWS
- CLOSE TO DURHAM CITY
Full Details
Elite Estates are delighted to present this exceptional five-bedroom detached home, offering a rare opportunity to acquire one of just 13 prestigious residences within the sought-after Hilltop Farm development, located on the outskirts of Durham City.
Occupying what is widely regarded as one of the finest plots on the development, the circa 3,330 sq ft home enjoys breathtaking, uninterrupted views across the Ramside Hall Hotel golf course and the surrounding countryside.
Designed by an award-winning Newcastle-based architectural practice, the property sits centrally within the development on a generous, elevated plot. The expansive rear garden backs directly onto the golf course, ensuring privacy, while the elevated position affords spectacular panoramic views across the Cathedral Course towards Durham City and the rolling Durham hills beyond.
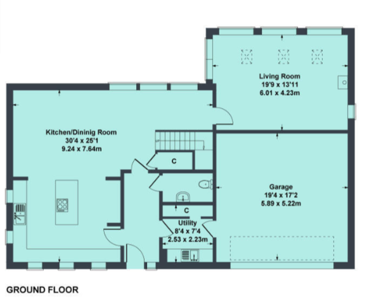
A gated, sweeping driveway provides an impressive approach, offering ample off-street parking alongside an integral double garage. Upon entering, the sense of space and natural light is immediately apparent, with floor-to-ceiling glazing framing the outstanding outlook.
The welcoming entrance hallway provides access to a cloakroom/WC, a useful utility room and internal access to the garage. The elegant open-plan kitchen and dining area is finished to a high specification, featuring quality integrated appliances, stunning countryside views, and direct access to the sun terrace and rear garden. This space flows seamlessly into the spacious lounge, enhanced by a feature fireplace and further floor-to-ceiling glazing, flooding the room with natural light.
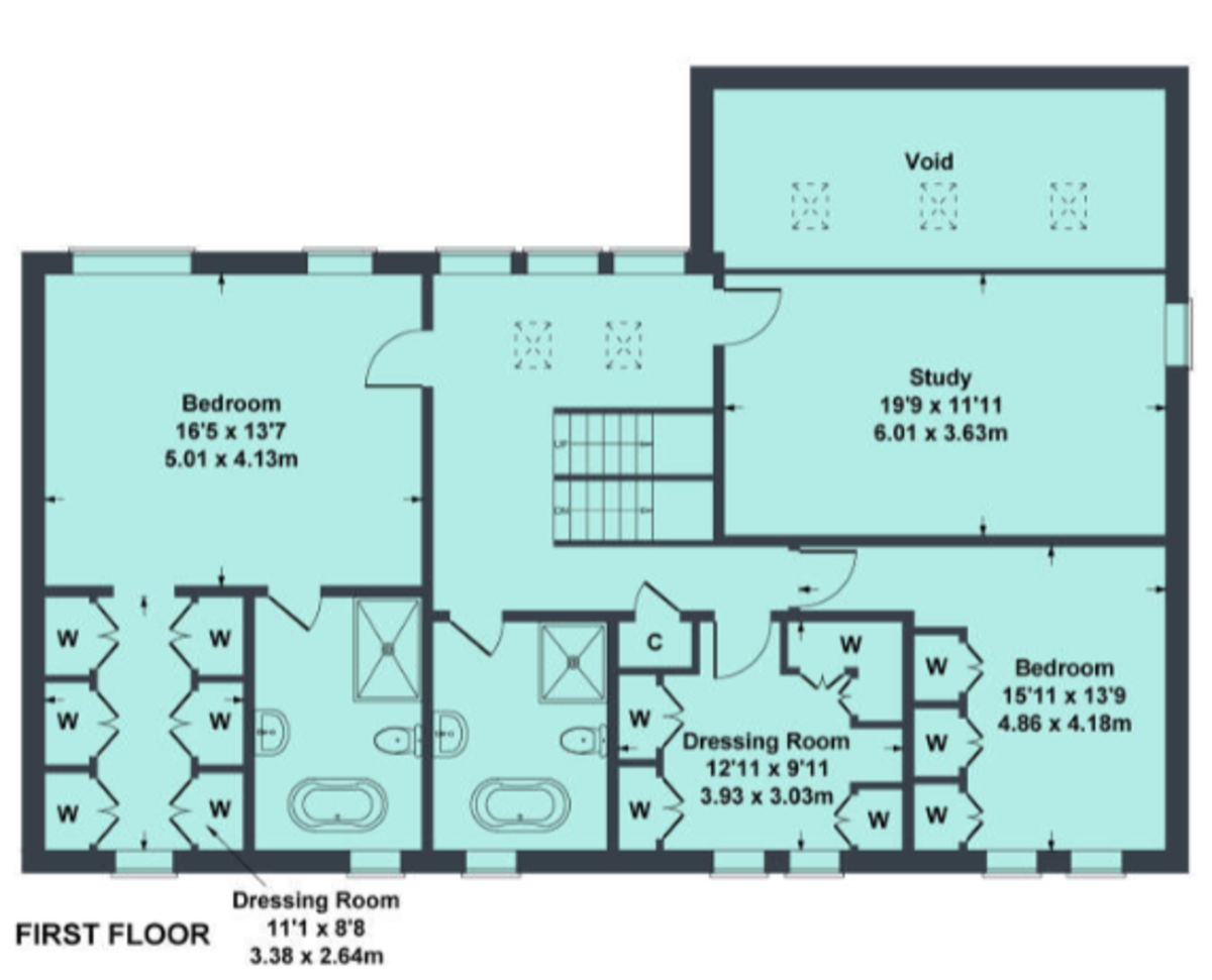
A contemporary glass staircase rises to the first-floor landing, providing access to a gallery bedroom, which can equally be used as a study or games room, alongside two further bedrooms. The impressive principal bedroom features a luxurious ensuite bathroom and a stylish walk-in wardrobe. Bedroom two is also generously proportioned and benefits from an adjacent dressing room. A beautifully appointed family bathroom with both bath and separate shower completes this level.
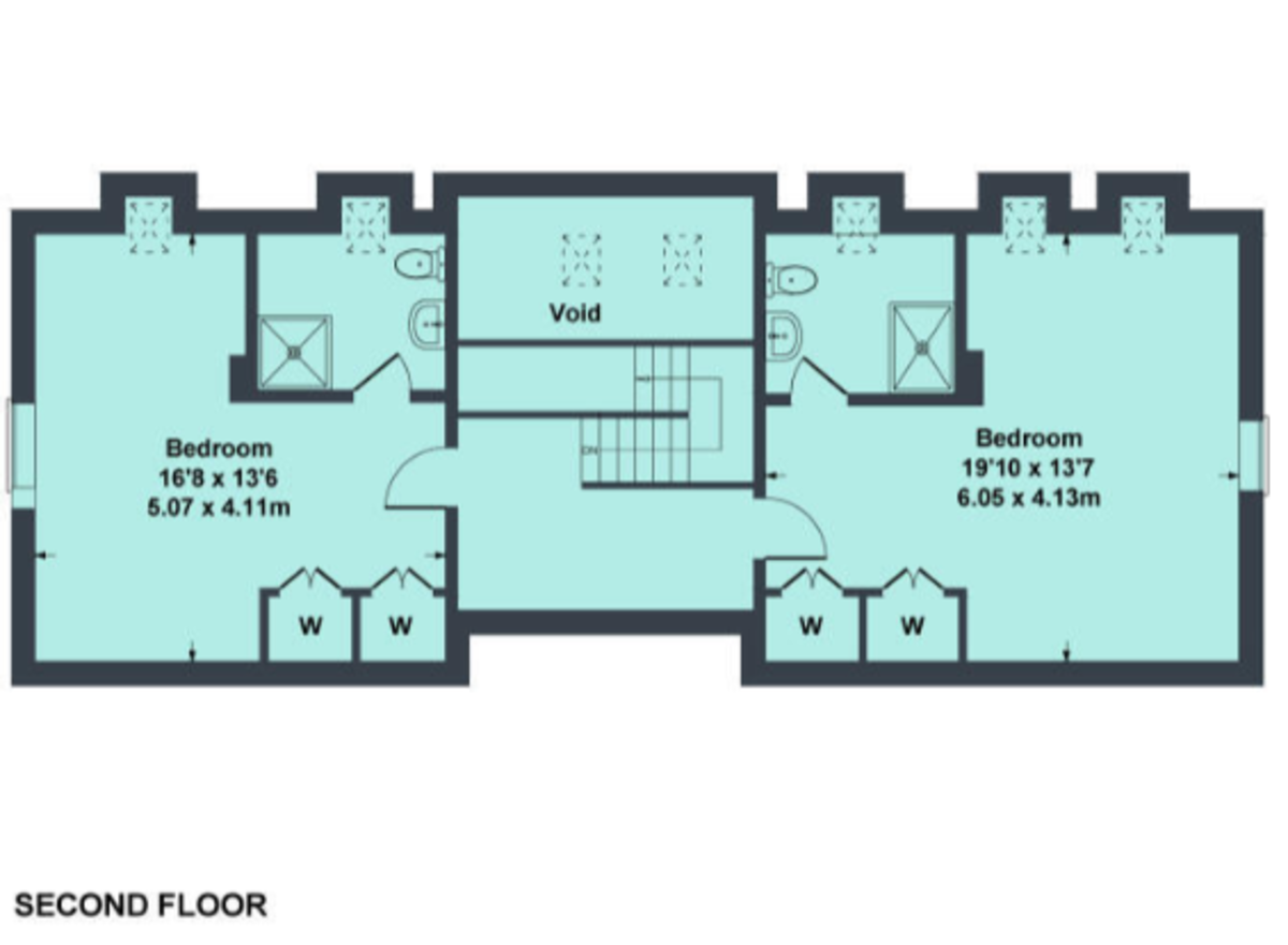
The second floor offers two further spacious bedrooms, each benefiting from modern ensuite facilities and fitted wardrobes to maximise storage.
Energy efficiency has been carefully considered throughout, with the property incorporating a heat-recovery system, underfloor heating across all floors, and triple-glazed windows, delivering excellent energy performance while maintaining exceptional levels of light and ventilation.
Externally, the large and private rear garden has been thoughtfully landscaped and includes lawned areas, mature planting, a patio, seating areas, and a summer house, ideal for entertaining, all set against the stunning Durham countryside.
Hilltop Farm is surrounded by two Championship golf courses. Ramside Hall Hotel and Golf Club, located just off the A1(M), is set within the glorious Durham landscape. Formerly the home of the Pemberton family, Ramside Hall was transformed into a hotel in 1963 and is now the largest privately owned luxury hotel in Durham. The Cathedral Course opened in 2014, followed by the 32,000 sq ft spa and leisure complex in 2015, offering a 25-metre pool, specialist spa facilities, and a state-of-the-art gym.
Durham City Centre lies less than three miles away, providing access to an excellent range of private and public schools, along with a wide array of amenities.
The A1 and A19 are both easily accessible, offering excellent transport links north and south.
This outstanding family home is expected to generate significant interest, and early viewing is highly recommended.
VIEWING STRICTLY THROUGH ELITE ESTATES - 7 DAYS A WEEK
0845 604 4485 | 07904 330772
Need some guidance?
Social Wall
Stay up to date with our latest posts
Enquiry
0845 604 4485
enquiries@eliteestatesandlettings.com

























































































